General
The LNL-M2220 intelligent controller provides decision making, event reporting, and database storage for the LenelS2 hardware platform. Two reader interfaces provide control for two physical barriers.
The LNL-M2220 communicates with the host via on-board 10Base-T/100Base-TX Ethernet port or the Micro USB port (2.0) with an optional Micro USB to Ethernet adapter.
Each reader port can accommodate a read-head that utilizes TTL (D1/D0, Clock/Data), F/2F (standard or supervised), or 2-wire RS-485 electrical signaling (OSDP reader for example) and also provides tri-state LED control and buzzer control (one wire LED mode only). Four Form-C relay outputs may be used for door strike control or alarm signaling.
Eight inputs are provided for monitoring the door contacts, exit push buttons, and alarm contacts. Input circuits can be configured as unsupervised or supervised. The LNL-M2220 requires 12 to 24 VDC for power.
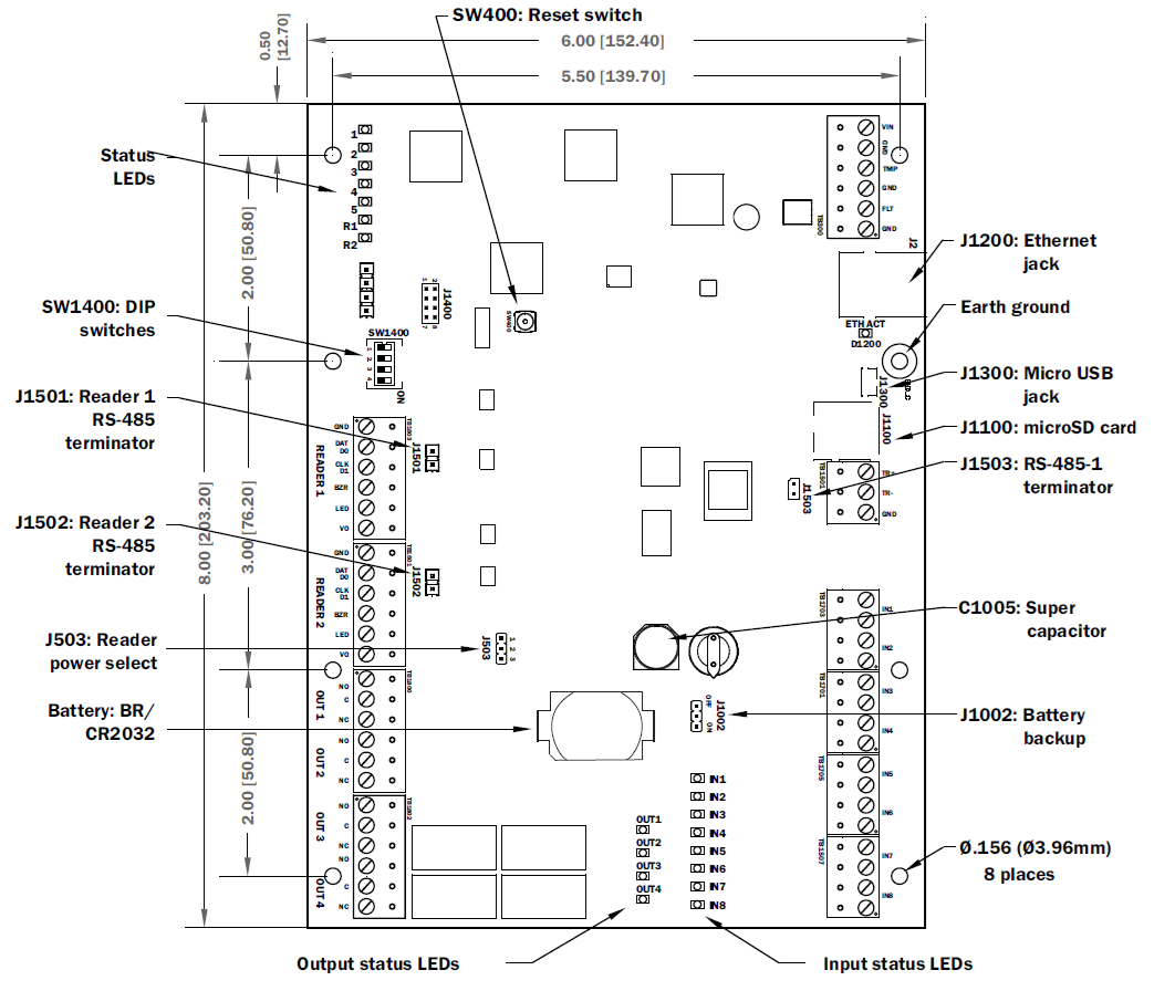
LNL-M2220 Hardware
LNL-M2220 Wiring
Terminal Block Connections | ||
|---|---|---|
TB300-1 | Power Fault Input | GND |
TB300-2 | FLT | |
TB300-3 | Cabinet Tamper Input | GND |
TB300-4 | TMP | |
TB300-5 | Power Input | GND |
TB300-6 | VIN: 12 to 24 VDC | |
TB1500-1 | N/A | Not Used |
TB1501-1 | SIO Port (2-wire RS-485) | GND |
TB1501-2 | TR- (A) * | |
TB1501-3 | TR+ (B) * | |
TB1703-1 | Input 2 | IN2 |
TB1703-2 | IN2 | |
TB1703-3 | Input 1 | IN1 |
TB1703-4 | IN1 | |
TB1701-1 | Input 4 | IN4 |
TB1701-2 | IN4 | |
TB1701-3 | Input 3 | IN3 |
TB1701-4 | IN3 | |
TB1705-1 | Input 6 | IN6 |
TB1705-2 | IN6 | |
TB1705-3 | Input 5 | IN5 |
TB1705-4 | IN5 | |
TB1707-1 | Input 8 | IN8 |
TB1707-2 | IN8 | |
TB1707-3 | Input 7 | IN7 |
TB1707-4 | IN7 | |
* Terms A & B are from the RS-485 standard.
Terminal Block Connections | ||
|---|---|---|
TB1603-1 | Reader 1 | GND: Ground |
TB1603-2 | DAT/D0: Data/Data 0/ TR- (A) * | |
TB1603-3 | CLK/D1: Clock/Data 1/ TR+ (B) * | |
TB1603-4 | BZR: Reader Buzzer | |
TB1603-5 | LED: Reader LED | |
TB1603-6 | VO: Reader Power | |
TB1601-1 | Reader 2 | GND: Ground |
TB1601-2 | DAT/D0: Data/Data 0/ TR- (A) * | |
TB1601-3 | CLK/D1: Clock/Data 1/ TR+ (B) * | |
TB1601-4 | BZR: Reader Buzzer | |
TB1601-5 | LED: Reader LED | |
TB1601-6 | VO: Reader Power | |
TB1800-1 | Out 1 | NO: Normally Open Contact |
TB1800-2 | C: Common | |
TB1800-3 | NC: Normally Closed Contact | |
TB1800-4 | Out 2 | NO: Normally Open Contact |
TB1800-5 | C: Common | |
TB1800-6 | NC: Normally Closed Contact | |
TB1802-1 | Out 3 | NO: Normally Open Contact |
TB1802-2 | C: Common | |
TB1802-3 | NC: Normally Closed Contact | |
TB1802-4 | Out 4 | NO: Normally Open Contact |
TB1802-5 | C: Common | |
TB1802-6 | NC: Normally Closed Contact | |
* Terms A & B are from the RS-485 standard.
Jumpers and Jacks
The LNL-M2220 processor hardware interface is configured using jumpers to set up the reader port power and end of line termination.
Jumpers | Set at | Description |
|---|---|---|
J1200 | N/A | 10Base-T/100Base-Tx Ethernet Connection (Port 0) |
J1503 | OFF | RS-485 EOL Terminator is Off |
ON | RS-485 EOL Terminator is On | |
J1501 | OFF | Reader 1 RS-485 EOL Terminator is Off (Non-OSDP readers) |
ON | Reader 1 RS-485 EOL Terminator is On (OSDP readers) | |
J1502 | OFF | Reader 2 RS-485 EOL Terminator is Off (Non-OSDP readers) |
ON | Reader 2 RS-485 EOL Terminator is On (OSDP readers) | |
J1300 | N/A | Micro USB Port (2.0) |
J503 | Reader Power Select * | |
12V | 12 VDC at Reader Ports | |
PASS | VIN "Pass Through" to Reader Ports | |
J1100 | N/A | microSD Card |
J1400-1 | N/A | Remote Status LED #1 ** |
J1400-2 | N/A | Remote Status LED #2 ** |
J1400-3 | N/A | Remote Status LED #3 ** |
J1400-4 | N/A | Remote Status LED #4 ** |
J1002 | Super capacitor or battery backup real time clock | |
OFF | Battery backup is OFF | |
ON | Backup battery is ON. Default J1002 link 1 and 2 for super capacitor real time clock backup. Link 2 and 3 for battery backup. Refer to Memory and Real Time Clock Backup Battery. | |
* For regulated reader output, install J503 jumper link in the 12V position (1 and 2) ONLY if the input voltage (VIN) is greater than 17 VDC. Failure to do so may damage the reader or LNL-M2220.
**Observe polarity connection to LED. External current limiting is not required.
DIP Switches
The four switches on SW1400 DIP switch configure the operating mode of the LNL-M2220 processor. DIP switches are read on power-up except where noted.
Pressing reset switch SW400 causes the LNL-M2220 to reboot.
1 | 2 | 3 | 4 | Definition |
|---|---|---|---|---|
OFF | OFF | OFF | OFF | Normal operating mode. |
ON | X | OFF | OFF | After initialization, enable default User Name (admin) and Password (password). The switch is read on the fly, no need to reboot. For more information, refer to IT Security. |
OFF | ON | OFF | OFF | Use factory default communication parameters.* |
ON | ON | OFF | OFF | Use LenelS2 default communication parameters.* Contact system manufacturer for details. See Bulk Erase Configuration Memory. |
ON | ON | OFF | OFF | Bulk Erase prompt mode at power up. See Bulk Erase Configuration Memory. |
X | X | X | ON | Makes the LNL-M2220 report and function like an LNL-X2220. To be used in situations where the host software has not been updated to support the LNL-M series product line. |
X = ON or OFF. All other switch settings are unassigned and reserved for future use.
* In the factory or LenelS2 default modes, downloaded configuration/database is not saved to flash memory.
Factory Default Communication Parameters
Interface 1 (NIC1)
- Network: static IP address: 192.168.0.251
- Subnet Mask: 255.255.0.0
- Default Gateway: 192.168.0.1
- DNS Server: 192.168.0.1
- Primary Host port: IP server, Data Security: TLS if Available, port 3001, communication address: 0
- Alternate Host Port: Disabled
Bulk Erase Configuration Memory
The bulk erase function can be used for the following purposes:
- Erase all configuration and cardholder database (sanitize board, less third party applications)
- Update OEM default parameters after OEM code has been changed
- Recover from database corruption causing LNL-M2220 board to continuously reboot
If clearing the memory does not correct the initialization problem, contact Technical Support.
Bulk Erase Steps
Important
Do not remove power during steps 1-5.
- Set SW1400 DIP switches: 1 & 2 "ON" and 3 & 4 "OFF."
- Apply power to the LNL-M2220 board. LED 1 will flash during boot up.
- After boot up, LEDs 1 & 2, and 3 & 4 start to alternately flashing at a 0.5 second rate.
Within 10 seconds, change switch 1 to "OFF." - When complete, only LEDs 1 and 4 will flash for about three (3) seconds.
- The LNL-M2220 reboots and will be available at the default IP address (192.168.0.251).
Reader Wiring
Each reader port supports a reader with TTL (D1/D0, Clock/Data) or 2-wire RS-485 signaling (OSDP reader for example). Power to the readers is selectable: 12 VDC (VIN must be greater than 18 VDC), or power is passed-through (PASS) from the input voltage of the LNL-M2220 (TB300-VIN), 600 mA maximum per reader port. Readers that require different voltage or have high current requirements must be powered separately. Refer to the reader manufacturer’s specifications for cabling requirements. In the 2-wire LED mode, the buzzer output is used to drive the second LED. Reader port configuration is set via the host software.
To fully utilize each reader port:
- TTL signaling requires a 6-conductor cable (18 AWG)
- RS-485 signaling requires two 2-conductor cables. Use one cable for power (18 AWG) and one cable for communication (24 AWG with drain wire and shield)
Notes
Data 0 and Data 1 wires for Wiegand may be reused for OSDP. However, standard Wiegand cable may not meet RS-485 twisted pair recommendations. The reuse of cable works best on shorter cable lengths at lower data rates.
Important
Failure to correctly set the OSDP jumper settings can cause communication issues.
Reader Power Select (J503)
12V PASS | J503 Reader Power Select |
|---|---|
12 VDC is available on reader ports (VIN is greater than 17 VDC). | |
VIN power is “passed through” (PASS) to reader ports (VIN is 24 VDC to 11 VDC). |
Important
For 12 VDC regulated reader output, install J503 jumper link in the 12V position (1 and 2) ONLY if the input voltage (VIN) is greater than 17 VDC.
Notes
Install J503 jumper link 1 and 2 to regulate reader output or pass-through automatically depending on the input voltage:
- VIN 26.4 V to 17 V = 12 V Output
- VIN 17 V to 14.5 V = Output OFF
- VIN 14.5 V to 10.8 V = Pass-through
Install J503 jumper link 2 and 3 for pass-through from 26.4 V to 10.8 V.
Ensure the pass-through voltage does not exceed the reader maximum operating voltage.
Input Power | Reader Power Select (Jumper J503) | Reader Output |
|---|---|---|
24 VDC | Pass-through | 24 VDC |
24 VDC | 12 VDC PASS | 12 VDC |
12 VDC | Pass-through | 12 VDC |
12 VDC | 12 VDC PASS | 12 VDC |
Reader Wiring Diagrams
Input Circuit Wiring
There are eight (8) inputs that are typically used to monitor door position, request to exit, or alarm contacts. Input circuits can be configured as unsupervised or supervised. When unsupervised, reporting consists of only the open or closed states. When configured as supervised, the input circuit will report not only open and closed, but also open circuit, shorted, grounded, and foreign voltage. A supervised input circuit requires two resistors be added to the circuit to facilitate proper reporting. The standard supervised circuit requires 1k ohm, 1% resistors and should be located as close to the sensor as possible. Custom end of line (EOL) resistances may be configured via the host software.
The input circuit wiring configurations shown are supported but may not be typical.
Relay Circuit Wiring
Four (4) relays with Form-C contacts (dry) are provided for controlling door lock mechanisms or alarm signaling. Each relay has a Common pole (C), a Normally Open pole (NO) and a Normally Closed pole (NC). When controlling
the delivery of power to the door strike, the Normally Open and Common poles are typically used. When momentarily removing power to unlock the door, as with a magnetic lock, the Normally Closed and Common poles
are typically used. Check with local building codes for proper egress door installation.
Door lock mechanisms can generate feedback to the relay circuit that can cause damage and premature failure of the relay plus affect the operation of the LNL-M2220. For this reason, it is recommended that a diode be used to protect the relay. Wire should be of sufficient gauge to avoid voltage loss.
Diode Selection
- Diode current rating: 1x strike current.
- Diode breakdown voltage: 4x strike voltage.
- For 12 VDC or 24 VDC strike, diode 1N4002 (100V/1A) typical.
Memory and Real Time Clock Backup Battery
The real time clock is backed up by a super capacitor or optional lithium battery when input power is interrupted. All other data is stored in non-volatile flash memory.
Note
If using the optional lithium battery, replace it annually.
The super capacitor is selected by default (J1002 jumper link 1 and 2).
To change to battery back up, install jumper link 2 and 3 and install the lithium coin cell.
Battery type: Panasonic BR2032 or CR2032.
Note
Data is stored in flash memory to prevent loss of data in the case of power interruption.
IT Security
When installing the LNL-M2220, it is important to ensure that it is done in a secure manner. Create user accounts to the web configuration page using secure passwords.
Ensure all DIP switches are in the OFF position for the normal operating mode.
The LNL-M2220 is shipped from the factory with a default login account, which is enabled when DIP 1 is moved from OFF to ON. The default login user name (admin) and password (password) will be available for five minutes
once the DIP switch is toggled. Therefore, it is important that at least one user account is defined, and the DIP switches are set to OFF before the LNL-M2220 is commissioned. It is also highly recommended not to configure the LNL-M2220 with an IP address that is accessible from the public Internet.
To further enhance network security, options are available to disable SNMP, Zeroconf discovery, as well as the web configuration module itself. Additionally, data encryption can be enabled over the host communication port.
Status LEDs
Power-up
NIC LED blinks and all other LEDs are off.
Initialization
The initialization process has several stages, each stage is represented by a different LED pattern in the following sequence:
- LED 1 is on for about 10 seconds.
- LED 2 is on for 25 seconds.
- LED 3 flashes slowly for 15 seconds.
- LED 3 flashes quickly for 1 second. LED 3 may continue flashing for an additional 60 seconds if the controller firmware is being updated.
- LED 1, LED 2, and LED 3 are off as the application starts.
- LED 4 is then on for 15 seconds indicating a successful initialization.
When LEDs 1, 2, 3, and 4 flash at the same time, data is being read from or written to flash memory, do not cycle power when in this state. If the sequence stops or repeats, perform Bulk Erase Steps.
Running: After initialization is complete, the LEDs have the following meanings:
LED | Description |
|---|---|
1 | Off-line / On-line and battery status |
Off-line = 20% ON, On-line = 80% ON | |
Double flash if battery is low | |
2 | Host communication activity (Ethernet or Micro USB port) |
3 | Internal SIO communication activity |
4 | External SIO communication activity |
5 | Unassigned |
R1 | Reader 1 |
R2 | Reader 2 |
ETH ACT | D1200 flashes with Ethernet activity |
YEL | Ethernet Speed: OFF = 10 Mb/S, ON = 100 Mb/S |
GRN | OFF = No Link, ON = Good Link, Flashing = Ethernet Activity |
IN1 - IN8 | OFF = Inactive, ON = Active, Flash = Fault * |
OUT1 - OUT4 | Relay K1 - K4: ON = Energized |
* If this input is defined, every three seconds the LED is pulsed to its opposite state for 0.1 seconds; otherwise, the LED is OFF.
Specifications
The LNL-M2220 is for use in low voltage, Class 2 circuits only. All output circuits are Class2/Power Limited.
The installation of this device must comply with all local fire and electrical codes.
- Primary Power: 12 to 24 VDC ± 10%, 550 mA maximum (reader and USB ports not included)
- Reader Ports: 600 mA maximum per reader port (add 600 mA to primary power current)
- Micro USB Port: 5 VDC, 500 mA maximum (add 270 mA to primary power current)
- Memory and Clock Backup Battery: Super capacitor or optional 3 Volt Lithium, type Panasonic BR2032 or CR2032
- microSD Card: Format: microSD or microSDHC; 2GB to 8GB
- Host Communication: Ethernet: 10Base-T/100Base-TX and Micro USB port (2.0) with optional adapter: pluggable model USB2-OTGE100
- Serial I/O Device: One 2-wire RS-485, 2,400 to 115,200 bps, asynchronous, half-duplex, 1 start bit, 8 data bits, and 1 stop bit
- Inputs: Eight unsupervised/supervised, standard EOL: 1k/1k ohm, 1%, ¼ watt
Two unsupervised dedicated for cabinet tamper and UPS fault monitoring - Outputs: Four relays, Form-C with dry contacts
Normally open contact (NO) contact: 5 A @ 30 VDC resistive
Normally closed contact (NC) contact: 3 A @ 30 VDC resistive - Reader Interface:
- Power (jumper selectable): 12 VDC ± 10% regulated, 600 mA maximum each reader port (input voltage (VIN) must be greater than 17 VDC)
or
12 to 24 VDC ± 10% (input voltage (VIN) passed through), 600 mA maximum each reader port - Data Inputs: TTL compatible or 2-wire RS-485
- RS-485 Mode: 9,600 to 115,200 bps, asynchronous, half-duplex, 1 start bit, 8 data bits, and 1 stop bit. Maximum cable length: 2000 ft. (609.6 m)
- LED Output: TTL levels, high>3 V, low<0.5 V, 5 mA source/sink maximum
- Buzzer Output: Open collector, 12 VDC open circuit maximum, 40 mA sink maximum
- Power (jumper selectable): 12 VDC ± 10% regulated, 600 mA maximum each reader port (input voltage (VIN) must be greater than 17 VDC)
- Cable Requirements:
- Power: 1 twisted pair, 18 AWG (when using local 12 VDC power supply)
- Ethernet: CAT-5, minimum
- Reader data (TTL): 6-conductor, 18 AWG, 500 feet (150 m) maximum
- Reader data (RS-485): 1 twisted pair, shielded, 120 ohm impedance, 24 AWG, 2,000 ft. (610 m)
maximum - Alarm Input: 1 twisted pair, 30 ohm maximum
- Outputs: As required for the load
- Environmental:
- Temperature:
Storage: -55 to +85 °C (-67° to 185° F)
Operating: 0 to +70 °C (32° to 158° F) - Humidity: 5 to 95% RHNC
- Temperature:
- Mechanical:
- Dimensions: 8 in. (203.2 mm) W x 6 in. (152.4 mm) L x 1 in. (25 mm) H
- Weight: 9 oz. (255 g) nominal, board only
These specifications are subject to change without notice.
Regulatory Information
FCC Compliance
This device complies with part 15 of the FCC Rules. Operation is subject to the following two conditions: (1) This device may not cause harmful interference, and (2) this device must accept any interference received, including interference that may cause undesired operation.
Liability
It is expressly understood and agreed that the interface should only be used to control exits from areas where an alternative method for exit is available. This product is not intended for, nor is rated for operation in life-critical control applications. LenelS2 is not liable under any circumstances for loss or damage caused by or partially caused by the misapplication or malfunction of the product. LenelS2’s liability does not extend beyond the purchase price of the product.
Certifications
For certification information, refer to the hardware documentation for the host application.
Product Warnings and Disclaimers
THESE PRODUCTS ARE INTENDED FOR SALE TO, AND INSTALLATION BY, AN EXPERIENCED SECURITY PROFESSIONAL. LENELS2 CANNOT PROVIDE ANY ASSURANCE THAT ANY PERSON OR ENTITY BUYING ITS PRODUCTS, INCLUDING ANY “AUTHORIZED DEALER”, IS PROPERLY TRAINED OR EXPERIENCED TO CORRECTLY INSTALL SECURITY RELATED PRODUCTS. FOR MORE INFORMATION ON PRODUCT WARNINGS AND DISCLAIMERS, SEE THE "LENELS2 PRODUCT WARNINGS AND DISCLAIMERS" KNOWLEDGE BASE ARTICLE IN THE LENELS2 KNOWLEDGE BASE. THIS INFORMATION IS SUBJECT TO CHANGE WITHOUT NOTICE.
© 2026 Honeywell International Inc. All Rights Reserved.





